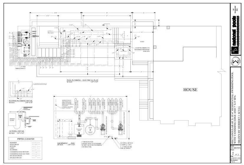
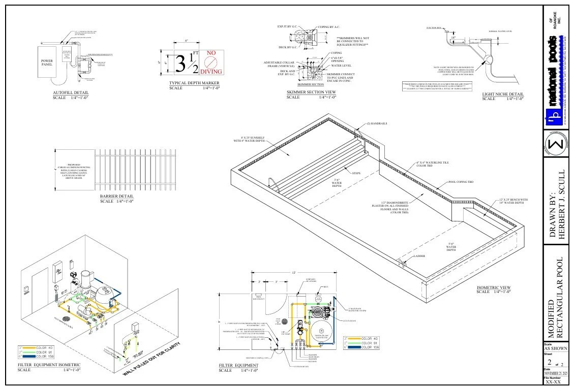
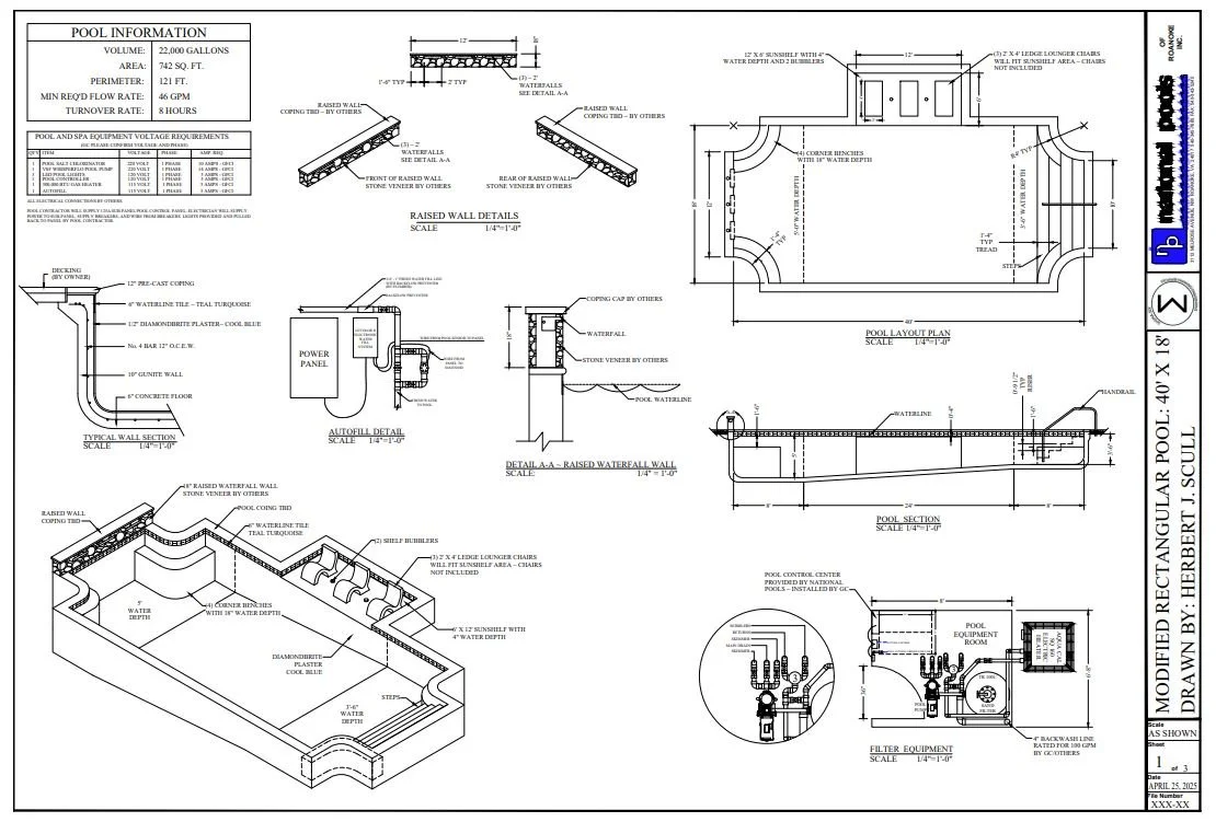
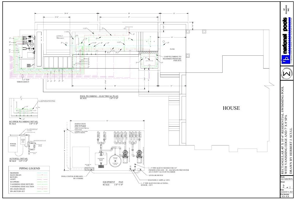
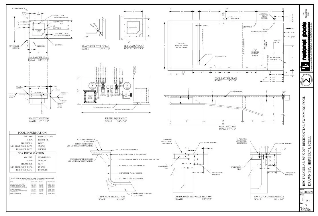
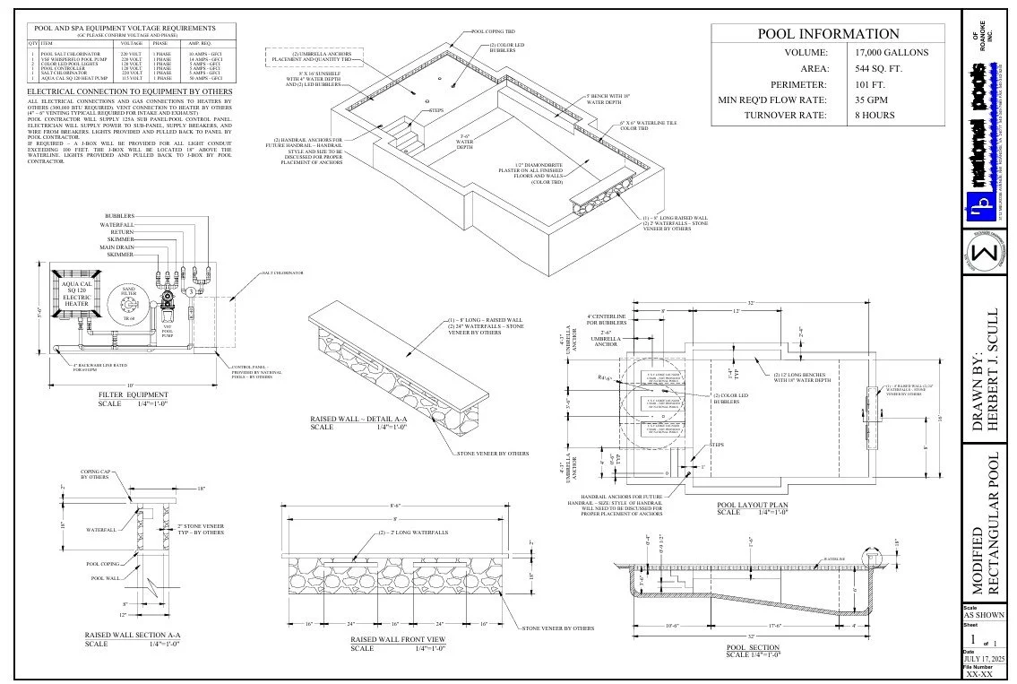
Residential and Commercial Pool Design
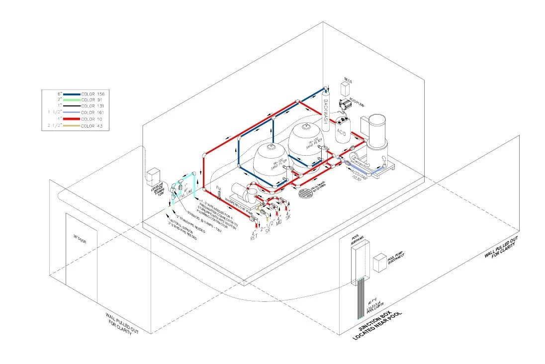
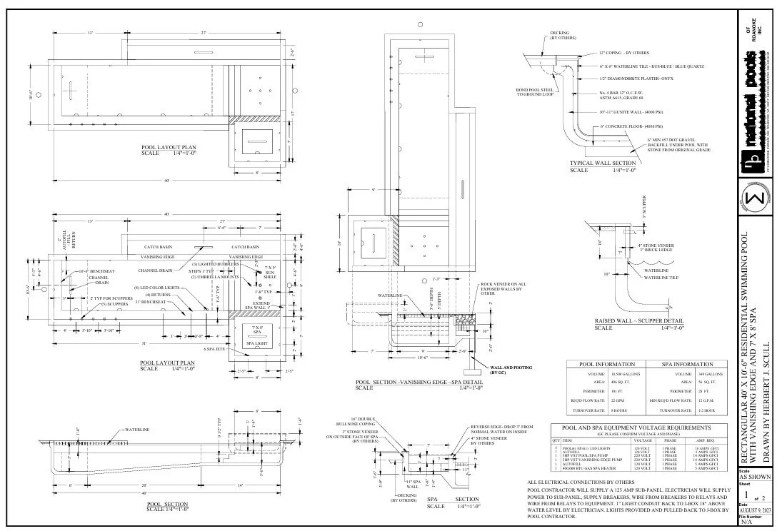
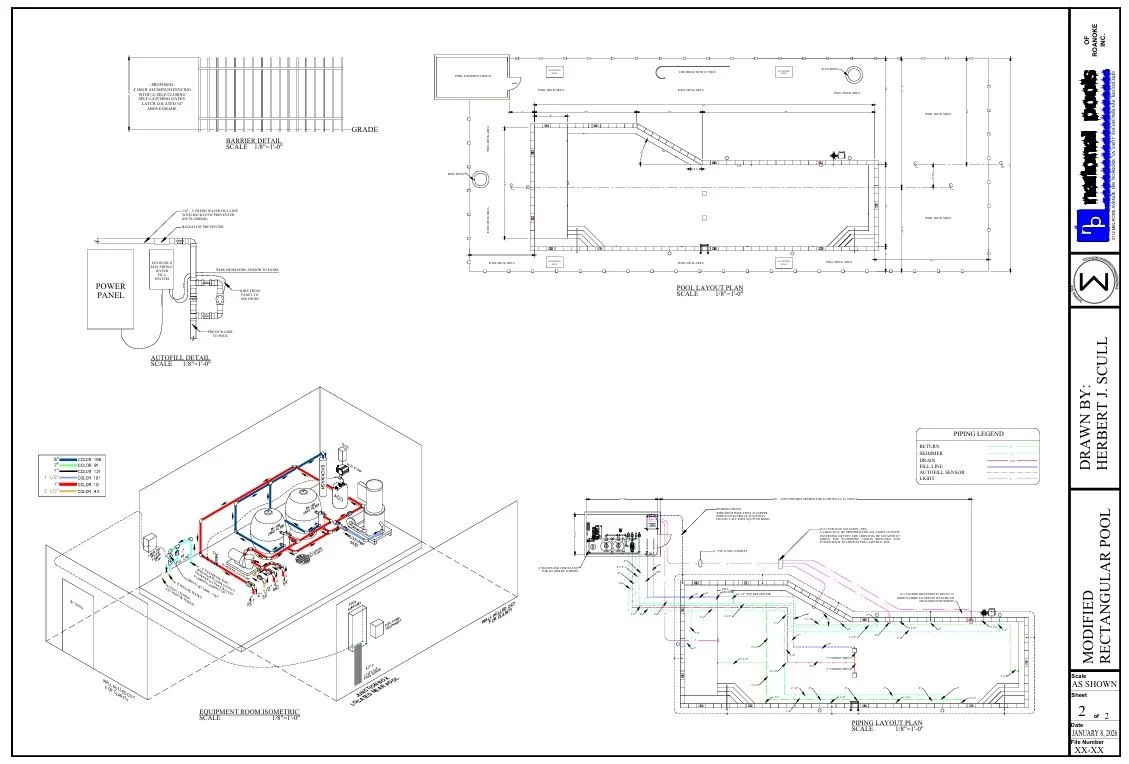
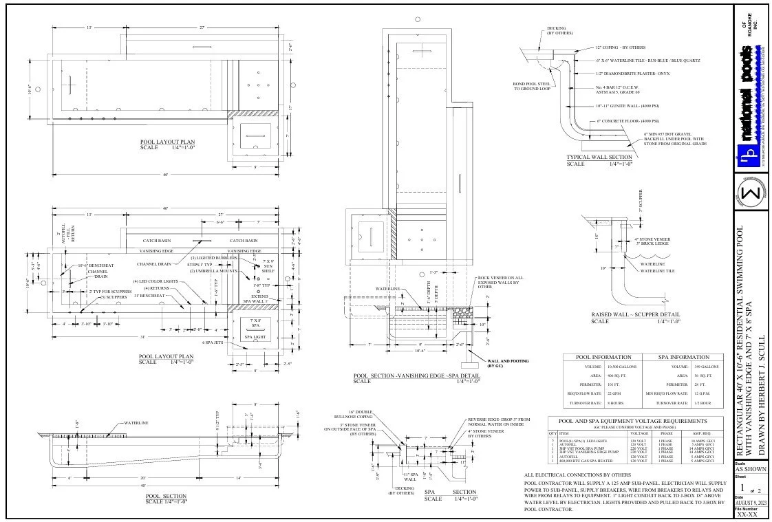
Finding someone to design a residential or commercial rebar gunite swimming pool is not an easy task. The average Architect or Engineer could draw the pool and the space around it but would the design pass code? Secondly, there’s not that many pool companies out there. Often Architect and Engineering Firms reach out to pool manufacturers for consultation work when designing residential or commercial swimming pools. There are a lot of things to adhere to when designing a swimming pool. For example, you have to adhere to slope codes that are tied into the desired depths and lengths of the swimming pool. Is the pool equipment below or above grade? Will it require a valve box? These are only a few of the questions one should consider when buying a swimming pool. When designing a pool, one should have a good understanding of the site layout and construction process to be involved. Sigma Six Engineering Drawing Services can help navigate the client through the process of design, site layout and construction as well as what it takes for permitting, etc. Sigma Six also has established relationships with pool manufacturers in their operating area. If a design is decided upon a contact can be made, the design can be forwarded, and the client can move towards estimating, a proposal and possibly even a contract and getting placed on a construction schedule.
Residential Designs
Commercial Designs
